● Norma: IEC60947-2
● Postes: 2P
● Corriente nominal: 100-1600 A
● Tensión nominal: 1000/1500 V
● Tensión de aislamiento nominal: 1600 V
● Tensión nominal soportada al impulso: 12 kV
● Tecnología de unidad de disparo: Termomagnética
● Temperatura ambiente: -25...+70 ºC
● Aplicación: fotovoltaica / UPS / batería / centro de datos, etc.
El EKM7DC es un disyuntor en caja moldeada específico para energía solar fotovoltaica desarrollado por ETEK Electric, que cumple con la norma IEC 60947-2. Tiene una tensión nominal de trabajo de hasta 1500 V CC, una tensión nominal de aislamiento de 1500 V, una tensión nominal soportada a impulsos de 12 kV y un rango de corriente nominal de 100 A a 1600 A. Estos disyuntores son capaces de interrumpir corrientes de cortocircuito de hasta 20 kA en aplicaciones de tensión de 1500 V CC.
El EKM7DC, que se utiliza ampliamente en los circuitos principales de cajas de conexión, armarios de CC y armarios de inversores, proporciona protección contra cortocircuitos, protección contra sobrecargas y funciones de aislamiento. Esto ayuda a evitar fallos del sistema provocados por la corriente de otros circuitos que pasa por puntos de cortocircuito. Su tamaño compacto, su fácil instalación, su seguridad, su funcionamiento fiable y su alta relación calidad-precio lo hacen ideal para las necesidades de generación de energía fotovoltaica.
| Estándar | IEC60947-2 | |||||
| Modelo | EKM7DC-320 | EKM7DC-400 | EKM7DC-630 | EKM7DC-1600 | ||
| Polacos | 2P | 3P, 4P | ||||
| Corriente nominal (In) | A | 100.125.140.160.180.200.225.250.280.315 | 250.315.350.400 | 400.500.630 | 800, 1000, 1250, 1500, 1600A | |
| Tensión nominal de funcionamiento (Ue) | V, CC | 750, 1000, 1200, 1500 | ||||
| Tensión de aislamiento nominal (Ui) | V | 1600 | ||||
| Tensión soportada al impulso nominal (Uimp) | kilovoltios | 12 | ||||
| Capacidad de ruptura de cortocircuitos Ics=UCI | Un | 750 V | 85 | 85 | 85 | 50 |
| 1000 V | 50 | 50 | 50 | 30 | ||
| 1200 V | 35 | 35 | 35 | 15 | ||
| 1500 V | 20 | 20 | 20 | 10 | ||
| Tecnología de unidad de disparo | Termomagnético | |||||
| Vida eléctrica | veces | 1000 | 1000 | 1000 | 500 | |
| Vida de la máquina | veces | 4000 | 4000 | 4000 | 2500 | |
| Distancia de arco | mm | 50 / 0 (con tapa extintora de arco) | ||||
| Disparador instantáneo | 5 pulgadas o 10 pulgadas | |||||


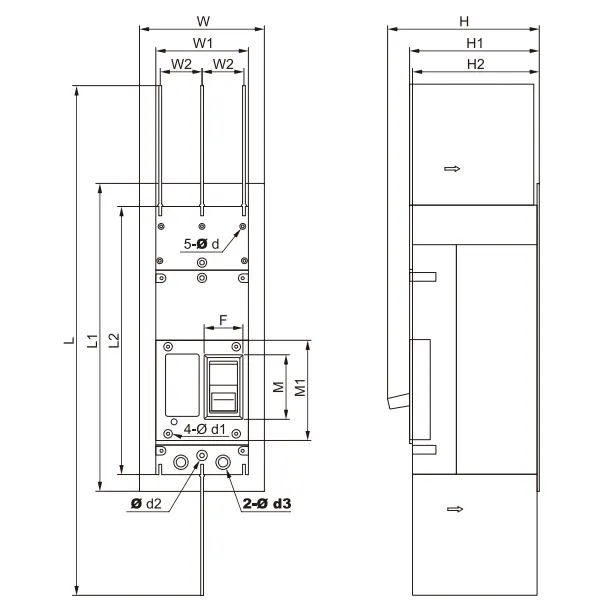
| Modelo | W. | W1 | W2 | l | L1 | L2 | METRO | M1 | F | h | H1 | H2 | d1 | d2 | d3 |
| EKM7DC-320 | / | 99 | 38 | 465 | / | 245 | 51 | 101 | 28 | 135 | 118 | / | / | 10 | 12.5 |
| EKM7DC-400 | 148 | 110 | 49 | 605 | 365 | 319 | 76 | 119 | 45 | 178 | 154 | 150 | 8 | 13 | 19 |
| EKM7DC-630 | 148 | 110 | 49 | 605 | 365 | 319 | 76 | 119 | 45 | 178 | 154 | 150 | 8 | 13 | 19 |

